Fachada principal del bloque rectangular
Dieciocho años atrás dirigiría como profesional de la arquitectura mi último conjunto de viviendas colectivas. Se trataba de un proyecto de bajo presupuesto para reponer unos edificios anteriores muy deteriorados, existentes en la primera periferia de mi ciudad. Recientemente, he vuelto a visitar el lugar y, la mayor satisfacción para mí fue constatar que aparentemente, los dos edificios realizados se conservan en muy buen estado, después de esas casi dos décadas transcurridas.
La historia de ese encargo se inicia con una iniciativa pública para sustituir un conjunto de varios cientos de viviendas populares que se encontraban en muy mal estado constructivo, presentaban problemas de estructura, notables humedades, desprendimientos en sus cerramientos exteriores y también tenían unas instalaciones técnicas de fontanería y saneamiento absolutamente destruidas. Además, y quizás como consecuencia de lo anterior, esa zona de la ciudad había ido cayendo paulatinamente en una marginación y pobreza muy aguda.
Ordenación del conjunto en su planta baja
Sección transversal con vista a la fachada del bloque semicircular
Para lograr la transformación buscada se organizaría un consorcio público en el que participaría económicamente el estado central, la comunidad autónoma canaria y el propio ayuntamiento de la ciudad de Santa Cruz de Tenerife. Los primeros aportarían los recursos necesarios y el último, se encargaría de gestionar la ejecución del programa de obras. El planteamiento de la reforma se basaría en la realización previa de un plan maestro de los arquitectos Díaz Llanos y Saavedra, un documento que definiría el proceso de sustitución de los edificios, la valoración global de la operación así como a la ordenación temporal de las actuaciones.
La reconversión del barrio se iniciaría en un principio con la construcción de varios grupos de viviendas, en parcelas vacantes próximas, para luego, en fases y años sucesivos, ir trasladando ordenadamente a los vecinos designados; y, a continuación, proceder a la demolición de nuevos ámbitos ocupados por construcciones deterioradas, repitiendo sucesivamente la operación hasta lograr la total reubicación del conjunto de personas afectadas. Un esfuerzo público que duraría más de una década y que yo calificaría de modélico, puesto que no solo se logró una buena y mejor organización urbanística de aquella zona de la ciudad, sino que también se realizarían unos magníficos edificios de alta calidad arquitectónica, y con ello, una mejora sustancial de las condiciones de vida de sus habitantes. Finalmente se conseguiría también atenuar en gran medida la marginalización previa, sin que se produjera las elitizaciones que son tan habituales en estos procesos. Es decir, la introducción de nuevos residentes con mayor poder adquisitivo que acaban expulsando completamente a la población preexistente.
Después de múltiples esfuerzos, reuniones y trabajos previos, la propia intervención del alcalde de aquel momento, José Emilio García Gómez, decidiría la adjudicación de los proyectos de arquitectura necesarios a profesionales distinguidos con algún galardón o premio profesional. Por esa razón, habiendo obtenido un reconocimiento anterior en el Premio Oraá de Arquitectura Canaria, me tocaría realizar el encargo de este grupo de viviendas concreto, junto a varios compañeros que intervendrían en otras parcelas próximas, generando edificios de tamaño similar.
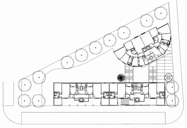
El encargo consistiría en lograr el máximo aprovechamiento de la parcela disponible dentro de los parámetros volumétricos asignados por el planeamiento urbanístico, para construir el mayor número de viviendas posibles, con una proporción fija de tipos de dos, tres y cuatro dormitorios, El coste económico de construcción asignado sería bastante bajo, dentro de los parámetros de la llamada vivienda protegida, sin que los redactores de los proyectos pudiéramos superar unas cantidades económicas prefijadas. A mi, particularmente, me asignarían una parcela muy complicada de forma triangular alargada con frente a dos vías, una de las cuales presentaba una pendiente muy fuerte cercana al 14%.
Patio interior de la parcela resultante de la disposición de las volumetrías
Me llevaría unos meses poder imaginar una composición volumétrica apropiada que permitiera encajar el número de viviendas exigido. Finalmente, llegaría a la conclusión de que podría disponer el programa en dos edificaciones: rectangular, la mayor con cuatro viviendas por planta, seis alturas y dos núcleos de escalera; y un segundo, semicircular con dos viviendas por rellano y nueve plantas de altura. Este segundo es el edificio más alto que he hecho en toda mi historia profesional.
El planteamiento arquitectónico que propuse allí optaría de alguna manera sutil en tratar de monumentalizar un entorno de vivienda popular de baja calidad con unos edificios singulares. Por ello, el lenguaje material empleado lo definiría en contraste radical con el complejo y duro entorno del barrio de Ofra, un sector de la ciudad construido en los años 60 del siglo XX bajo las premisas de la Carta de Atenas y diseñado recurriendo a las tipologías favoritas de la arquitectura que se hacía en esos años, bloques aislado y torres en altura.
La composición del conjunto seguiría esa pauta de bloques aislados aunque trataría de conformar de alguna manera las fachadas urbanas y los espacios que definen las calles. Establecería así una fachada continua para el bloque rectangular a lo largo de la alineación a la calle de máxima pendiente y una pequeña plaza de acceso en el segundo volumen curvo en la esquina entre los bloques. La disposición geométrica de las viviendas se planteó siguiendo un esquema tipológico convencional de agrupación de dos viviendas de tres crujías estructurales paralelas alrededor de un espacio de acceso y comunicación vertical, con escaleras y ascensores
Detalle de los balcones en el extremo sur del bloque rectangular
Una arquitectura que cabría etiquetar como “realismo sucio”, considerando la necesidad de emplear materiales duraderos que no requirieran un mantenimiento destacable a largo plazo. El uso de hormigones en su terminación natural y de enfoscados exteriores de grava a la tirolesa, junto al empleo de colores discretos y resistentes a la acción de los elementos –polvo, vientos y radiación solar- ha hecho que casi dos décadas después los edificios reflejen todavía un buen estado exterior a pesar de una ausencia radical en su sostenimiento. Emplearía también un recurso cuasi escultórico al acentuar la forma de los lienzos de fachada extendiendo los paños lateralmente, a la manera de grandes láminas que recubren protectoramente la construcción. En aquellos años, había descubierto también la escultura de Richard Serra que, de alguna manera, trataría de representar su eco, en una reverberación de esa mística del peso de los materiales.
Unos meses después de ocuparse estas viviendas, recuerdo que visitaría el conjunto con el objetivo de preguntarles a los nuevos usuarios como percibían los espacios y su uso. La mayoría me comentaría su conformidad, señalándome el carácter luminoso y ventilado de la mayoría de las viviendas. No obstante, siempre recordaré un comentario que me hizo una señora, ya mayor, que me agradecía su espaciosa nueva casa, pero que no entendía porque no se había hecho una ventana en su cocina, justo en la fachada, para que entrará directamente más luz. Le respondí que era imposible porque el cerramiento de los espacios situados en las plantas inferiores era de hormigón armado y, por lo tanto, muy costosa su perforación. En ese momento, me dí cuenta que impelido en mi diseño por la dictadura de las formas y los materiales, había impedido para siempre una mayor confortabilidad de su vivienda que hubiera sido posible.
Algún día espero volver a trabajar en este campo, haciendo nuevamente vivienda pública. Construir hogares para personas con recursos escasos es una actividad difícil y compleja pero a la postre gratificante.
Fachada a la calle del bloque semicircular






realmente , tal y como se ve en las fotos, tienen muy buena pinta, me imagino q sus moradores te estaran agradecidos….