Nave Industrial. Laboratorio Coac


La empresa de control de calidad en la edificación del Colegio de Arquitectos, Laboratorio COAC SL, necesitaba trasladar sus instalaciones debido a la escasez de espacios para atender a las nuevas necesidades de la empresa. Para solucionar este problema se ha acometido la construcción de unas nuevas instalaciones situadas en el Polígono Industrial de Güimar, en el sur de la isla de Tenerife.

El entorno del nuevo edificio es el característico de un área industrial donde conviven naves de almacenaje y de fabricación, y que presentan una forma urbana de paralelepípedos rectangulares aislados en parcelas de mediano y gran tamaño dentro de una espaciosa trama viaria reticular apropiada para la maniobra de grandes camiones y maquinaria.
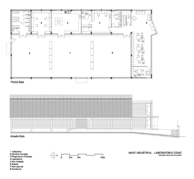
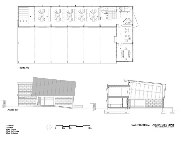
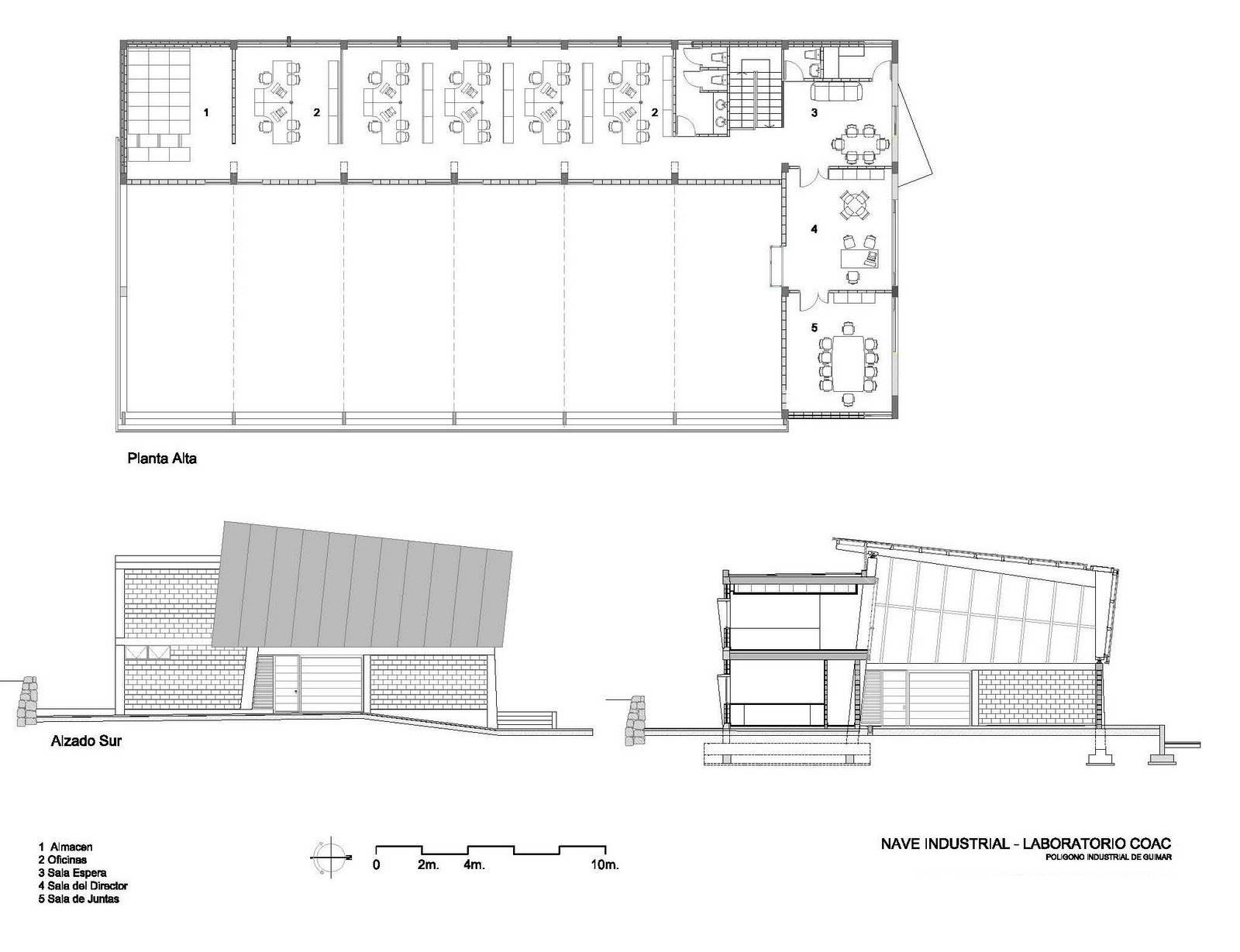
El proyecto se enfoca asumiendo el tipo característico presente en la zona, un volumen rectangular unitario centrado en su parcela. El espacio construido disponible se organiza dividiendo el volumen en dos sectores que se abrazan, aquel en el que se sitúan la maquinas necesarias para los procesos de control de materiales y el que corresponde a las oficinas y servicios de apoyo.

El sector de maquinarias se define como un gran espacio a doble altura en previsión de la colocación de elementos y piezas de gran altura mientras que la zona de servicios se estructura en dos alturas. En este segundo sector, se colocan en planta baja los recintos destinados a administración, laboratorio, almacenes y vestuario y en planta alta los espacios de oficinas y dirección.
El sistema constructivo se adapta de manera diferenciada a los dos sectores definidos. Así, la zona de maquinarias se realiza con una estructura ligera de cerchas de madera laminada y cubierta de chapa sándwich con acabado de aluminio y en el sector de dos plantas se ejecuta en estructura de forjados convencionales de hormigón aligerado y elementos estructurales del mismo material para dejar visto. La construcción se completa con elementos de carpintería de aluminio.


La propia naturaleza de la obra obligaba al empleo de los materiales habituales en la construcción en el archipiélago, albañilerías de bloques de hormigón y estructuras del mismo material junto con algunos elementos constructivos novedosos como la estructura de madera laminada y un muro cortina de silicona estructural en la fachada principal. Todo ello con el objeto de ejemplificar el carácter específico de la empresa, cuya dedicación principal consiste en el control de la calidad de los materiales, y al cual tanto la lógica estructural y la estética y diseño del edificio debe de someterse.

No se admiten más comentarios