Bloomframe es una ventana que se transforma en balcón ,permitiendo ampliar el espacio de la habitación en la que se sitúa, abriendo un balcon donde no lo hay.Diseñada por el estudio de arquitectura del holandés Hofman Dujardin y especialmente útil para zonas densamente pobladas

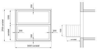
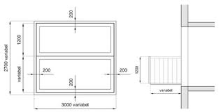
Esta realizada con perfiles de aluminio con rotura de puente térmico. El mecanismo de apertura esta constituido por un doble marco articulado y un equipo electrónico que acciona la apertura y el cierre, desplegando el balcón. La superficie de suelo puede ser de acero o vidrio. Este puede soportar un peso de hasta 350kg/m2 y mide 3metros de ancho y 2,7 metros de alto.
El balcón Bloomframe puede ser utilizado para los apartamentos, oficinas o incluso hoteles. Estos pueden ser fácilmente personalizados para satisfacer la necesidad del cliente en el color, dimensión y materiales diferentes. Se pueden personalizar para formar parte de la fachada, y de esta manera la fachada plana florecerá con estos balcones, en los días soleados de verano
Esta ingeniosa idea puede ser una solución para evitar que no se produzcan cerramientos de balcones por medio de carpinterías horrorosas que destrozan los edificios.


Hola. Me llamo Ian McGregor. Parece muy bueno idea para mi despacho en Manchester. Muchas gracias por idea Señor Mosquera. Bucearé en internet. Kind regards.
me parece una idea muy buena, preguntare a la comunidad si lo puedo poner en mi ventana del edificio
y esto lo haceis vosotrs? y el precio? se podria poner en un atico en el tejado en pendiente en vez de recto?