REFLEXIONES SOBRE URBANISMO Y TERRITORIO

Aquí he agrupado el conjunto de análisis y comentarios que he ido añadiendo a este espacio sobre temas de urbanismo y territorio.

TERRITORIOS FIBROSOSLa extensión en mancha de aceite de las ciudades es una estrategia de desarrollo insostenible en las actuales condiciones de deterioro del planeta. El consumo masivo de todo tipo de recursos nos ha llevado a una situación extrema por su irracionalidad No se puede disponer infinitamente de materias primas, alimento y manufacturas dentro de un espacio cerrado como el que supone la Tierra.
Resto del texto aquí:
Territorios fibrosos 05/12/2009

EL MODELO DE LA CIUDAD LINEAL
A finales del siglo XIX, Arturo Soria y Mata publicaba el opúsculo titulado Proyecto de Ciudad Lineal alrededor de Madrid. Con él pretendía generar un estado de opinión favorable a sus ideas sobre el desarrollo urbano de las ciudades. Hoy en día, aquellos conceptos son un referente esencial para la reestructuración sostenible de las ciudades en muchas partes del mundo.
Resto del texto aquí:
El modelo de la ciudad lineal 29/11/2009

ACTUALIDAD DEL TRANSPORTE PÚBLICO
En un territorio denso como el canario, el vehículo privado ha reinado de una manera incuestionable como actor exclusivo del transporte personal. Sin embargo, también aquí, en una sociedad altamente individualista que considera la libertad de desplazamiento como una conquista inalienable, ha ido adquiriendo paulatinamente un papel creciente de villano en la batalla por la sustentabilidad planetaria.
Resto del texto aquí:
Actualidad del transporte público 22/11/2009


A medida que transcurre este joven siglo XXI que nos ha tocado vivir, asistimos al levantamiento paulatino de más y mayores murallas. Murallas que nos separan, murallas dentro de nuestras ciudades, murallas que dividen países, murallas que pretenden dejar fuera a los bárbaros…
Resto del texto aquí: Murallas contemporáneas 04/04/2009

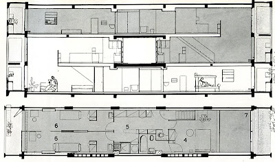
EDIFICIOS RESIDENCIALES
Una gran parte de la gran masa edificada de la ciudad está dedicada a la residencia. Este hecho incontrovertible ya lo reseñaba hace cuarenta años el arquitecto italiano Aldo Rossi en su conocido libro La arquitectura de la ciudad. De acuerdo a esta constatación, los espacios urbanos metropolitanos están formalmente definidos por edificios residenciales mientras que una ínfima parte de lo construido pertenece a la arquitectura monumental que, junto a la ordenación de la urbanización y el paisajismo, establecerían la idiosincrasia específica de los lugares.
Resto del texto aquí:
Edificios residenciales 01/03/2009

MARCANDO CIUDADES

El anglicismo branding se relaciona con una práctica tradicional de los vaqueros americanos, la grabación a fuego de los ejemplares del ganado integrante de sus rebaños con el objeto de lograr distinguirlos de aquellos de la competencia. Este concepto se ha trasladado a la gestión urbana como la definitiva herramienta para conseguir el deseado desarrollo de urbes y regiones. En nuestros días, una nueva disciplina, la mercadotecnia de las ciudades, se esfuerza en interpretar las características esenciales de la idiosincrasia urbana como estrategia para lograr un mejor posicionamiento económico asociado a las metrópolis en competencia.
Resto del texto aquí:
Marcando ciudades 15/02/2009

VINEX, UNA PLANIFICACIÓN EXITOSA DE LA RESIDENCIA
Grandes empresas de productos informáticos, como Microsoft o Intel, planifican con varios años de antelación la puesta en mercado de sus productos. Es algo que también hacen algunos países con las necesidades de sus ciudadanos. Como en el caso de Holanda y su apuesta por una planificación espacial de la urbanización; aquella que albergue nueva oferta residencial para satisfacer la demanda estimada de su crecimiento poblacional.
Resto del texto aquí: Vinex, una planificación exitosa de la residencia 10/01/2009

LA EXPO DE ZARAGOZA: UN BALANCE PERSONAL
En el verano de 2008 tuve oportunidad de visitar la Expo del Agua en la ciudad de Zaragoza. Me permitió observar por primera vez un acontecimiento de este tipo y reflexionar sobre su significado y las posibles repercusiones en una ciudad concreta. Como visitante, hay dos cuestiones sobre las que me gustaría dar mi opinión personal: el urbanismo y la arquitectura.
Resto del texto aquí:
La Expo de Zaragoza: un balance personal 04/10/2008

NECESIDADES URBANAS Y REPRESENTACIÓN PIRAMIDAL
Históricamente, algunos investigadores sociales se han preguntado cuales son las necesidades que debe cubrir suficientemente una sociedad en relación a sus miembros. Abraham Maslow ha tratado de responder a esta cuestión y, a partir de su trabajo de investigación sobre la sicología de los individuos, desarrolló su famosa pirámide de necesidades.
Resto del texto aquí: Necesidades urbanas y representación piramidal 21/09/2008

TERRITORIOS INVISIBLES

Siguiendo quizás la estela de Jorge Luis Borges, el escritor italiano Italo Calvino preparó un conjunto de textos extraordinarios bajo el enunciado de Las ciudades invisibles. Presentados al gran Kublai Kan como descripciones imaginarias de territorios soñados por Marco Polo en el relato de sus viajes maravillosos, me parecen sumamente descriptivos de realidades o sensaciones muy actuales, aquellas que conforman nuestra percepción del espacio contemporáneo.
Resto del texto aquí:
Territorios invisibles 20/07/2008

CARTOGRAFÍA Y PLANIFICACIÓN

Comentando con alguien el texto sobre los cartógrafos que aparece en El Hacedor, es muy curioso comprobar el amplío eco que tiene en Internet. Analizando la referencia a este fragmento y su consulta en Google es sorprendente constatar que sea citado textualmente más de 200 veces.
Resto del texto aquí:
Cartografía y planificación 17/07/2008

ESTRATEGIAS INMOBILIARIAS LIGADAS AL TURISMO
A lo largo del siglo XX ha tenido lugar un desarrollo extraordinario en uno de los sectores económicos que actualmente presentan más dificultades, el inmobiliario. Uno de sus objetivos más lucrativos siempre ha sido la creación de nuevo espacio urbano y su materia prima es el territorio con valores paisajísticos potenciales.
Resto del texto aquí:
Estrategias inmobiliarias ligadas al turismo 24/05/2008

TIPOLOGÍAS APLICABLES AL URBANISMO

La identificación de las tipologías volumétricas aplicables en la construcción de la urbanización es una de las cuestiones a las que menos se presta atención en la práctica del urbanismo. Sin embargo, tiene una importancia decisiva para la calidad de la arquitectura que posteriormente se pueda desarrollar a partir de la proyectación urbana.
Resto del texto aquí:
Tipologías aplicables al urbanismo 16/02/2008

Uno de los debates más jugosos que tienen lugar recurrentemente sobre la ciudad en las sociedades avanzadas es el que se refiere a la densidad urbana más adecuada para el futuro.
Resto del texto aquí:
Densidades urbanas 16/12/2007

EL DÍA MUNDIAL DEL URBANISMO
Con motivo del Día Mundial del Urbanismo de 2007, el periodista José Luís Zurita me entrevistó sobre la actualidad de la planificación en las islas Canarias para el periódico tinerfeño Diario de Avisos y estas fueron mis contestaciones.
Resto del texto aquí:
El día mundial del urbanismo 04/11/2007

LA NUEVA LEY DEL SUELO
La aprobación de la Ley del Suelo cierra, por el momento, un período convulso del urbanismo español. Contribuye a la simplificación terminológica de los conceptos pero añade nuevos requisitos que acrecientan la burocratización en el manejo del crecimiento de las ciudades
Resto del texto aquí:
La nueva ley del suelo 25/06/2007

Leave a Reply